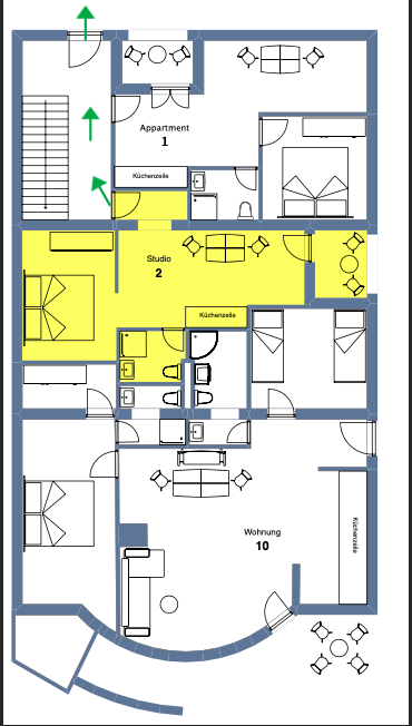
STUDIO 2
liegt im Erdgeschoss und verfügt über ein ruhiges Schlafzimmer mit Doppelbett. Eine komplett ausgestattete Küche, einen Wohn- & Essbereich und ein eigenes Bad, zudem gibt es einen überdachten Balkon.
Auch vierbeinige Lieblinge sind in diesem Apartment nach Absprache herzlich willkommen.










